Villa singola in vendita

Verona, Via Contrada Grande - Marzana
€ 635.000
8 locali 8 locali
400 Mq 400 Mq
4 bagni 4 bagni

Villa singola in vendita

Verona, Via Contrada Grande - Marzana

Descrizione annuncio

MARZANA

In una delle zone più richieste di Marzana, proponiamo in vendita un’ampia villa singola, ideale per chi è alla ricerca di una soluzione versatile e confortevole.

La proprietà si distingue per la presenza di due appartamenti indipendenti, perfetti per nuclei familiari numerosi o per chi desidera coniugare abitazione e investimento.

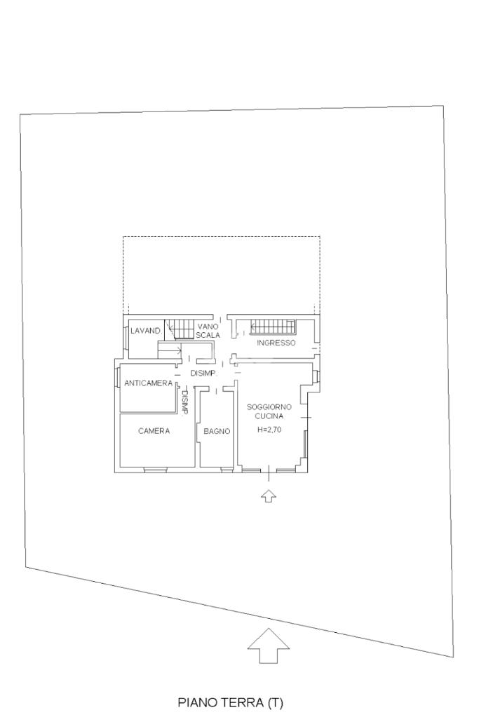
Al piano terra si trova un trilocale completamente ristrutturato nel 2014, composto da un soggiorno con angolo cottura, due bagni finestrati e due camere da letto, una matrimoniale e una singola.
Questa unità è dotata di riscaldamento a pavimento, tapparelle motorizzate e infissi ad alte prestazioni, che garantiscono un eccellente isolamento acustico e termico.

Al piano superiore si sviluppa un ampio appartamento di cinque locali, ristrutturato nei primi anni 2000.
L’ingresso si apre su un luminoso soggiorno e una cucina separata abitabile. Da qui si accede a un balcone che corre lungo tutto il prospetto sud della casa. La zona notte, ben distribuita tramite disimpegno, comprende un bagno finestrato e tre camere da letto, una doppia e due matrimoniali, di cui una dotata di bagno privato finestrato.

L’abitazione è circondata da un giardino privato, ideale per momenti di relax all’aria aperta o per chi ama vivere gli spazi esterni.

Completano la proprietà una spaziosa soffitta, un garage doppio in lunghezza e una suggestiva cantina, offrendo così ampie possibilità di stoccaggio e parcheggio.

Questa soluzione è perfetta per chi cerca comfort, indipendenza e funzionalità, in una delle aree più tranquille e verdi della città di Verona.

Mostra tutto

Nelle vicinanze

Trasporto pubblico Trasporto pubblico
Via Monte Sparavieri
Via Monte Sparavieri
40 m
Via Monte Cucco fr. 4 III
Via Monte Cucco fr. 4 III
230 m
Scuole Scuole
Scuole
820 m
Scuola Secondaria di I grado - IC "Giovanni Pascoli"
1,6 Km
Scuola Primaria - IC "Giovanni Pascoli"
1,8 Km
Farmacia Farmacia
Farmacia Comunale Quinto
1,1 Km
Parafarmacia L'Isola Verde
1,5 Km
Farmacia Pantheon
1,7 Km
Farmacia Dell'Assunta
1,9 Km
Ospedali Ospedali
Ospedale di Marzana
200 m
Supermercati Supermercati
EuroSpin
1,4 Km
eurospin
1,4 Km
L'Isola Celiaca
1,5 Km
Negozi Negozi
Negozi
1,1 Km
Brenzan
1,2 Km
Salvagno
2,6 Km
Bar Bar
S. Carlo
1,3 Km
Bar
1,4 Km
Gelateria Ciao
1,8 Km
The Brothers
2,3 Km
La Baita
2,8 Km
Ristoranti Ristoranti
Pizzeria Bar da Leo
310 m
Paella valenciana style
690 m
Trattoria Pizzeria Quinto Miglio
960 m
Agriturismo il Porcellino
1,2 Km
Pizzeria Corte Fusina
1,5 Km
Mostra tutto

Caratteristiche

Rif.:
61106647
Piano:
Su più livelli di 3
Totale piani:
3
Box:
2
Balconi:
1
Camere da letto:
5
Mostra tutto
Prezzo Prezzo
€ 635.000
Rata mutuo Rata mutuo
€ 2.935 / mese
Spese annue Spese annue
€ 0
Proponi il tuo prezzoProponi il tuo prezzo

Classe Energetica

Questo immobile è esente da classe energetica
Anno di costruzione:
1969
Riscaldamento:
Autonomo
Tipo impianto:
A pavimento
Tipo alimentazione:
Metano

Ti interessa visionare l'immobile?

Fissa un appuntamento  Fissa un appuntamento

Richiedi informazioni

* Questi campi sono obbligatori

Calcola il tuo mutuo

Semplice e senza impegno
Anticipo

( % )
Mutuo

( % )

pochi semplici passi

inserisci i tuoi dati
Questionario completato
Grazie per aver richiesto un appuntamento senza impegno con un nostro Consulente del Credito e Assicurativo.

Hai inserito correttamente tutti i dati necessari e a breve riceverai una e-mail con un link da convalidare per inviare i tuoi dati.
Affiliato
Studio Grezzana Nuova Snc
Via Roma, 84 37023 Grezzana (VR)

Il nostro staff


  • Brian Prati
    Affiliato

  • Martina Bonomi
    Collaboratrice

  • Giovanni Lucchi
    Affiliato

  • Luca Nicolis
    Collaboratore

  • Diego Piccoli
    Responsabile

  • Jessica Pezzo
    Collaboratrice
Via Roma, 84 37023 Grezzana (VR)
Zona: Grezzana-Quinto-Marzana-Valpantena
Mostra su mappa
Orari: Dal Lunedì al Venerdì 09:00 - 12:30 15:00 - 19:30 Sabato 09:00 - 13:00
Affiliato
Studio Grezzana Nuova Snc
Via Roma, 84 37023 Grezzana (VR)

2025 Tecnocasa Franchising S.p.A. - P. IVA 08365160152 - Via Monte Bianco 60/A 20089 Rozzano (MI). Ogni agenzia ha un proprio titolare ed è autonoma. Privacy policy | Policy utilizzo | Cookie policy