Quadrilocale in vendita

Grezzana, Via segai - Stallavena-Lugo
€ 115.000
4 locali 4 locali
155 Mq 155 Mq
1 bagno 1 bagno

Quadrilocale in vendita

Grezzana, Via segai - Stallavena-Lugo

Descrizione annuncio

GREZZANA

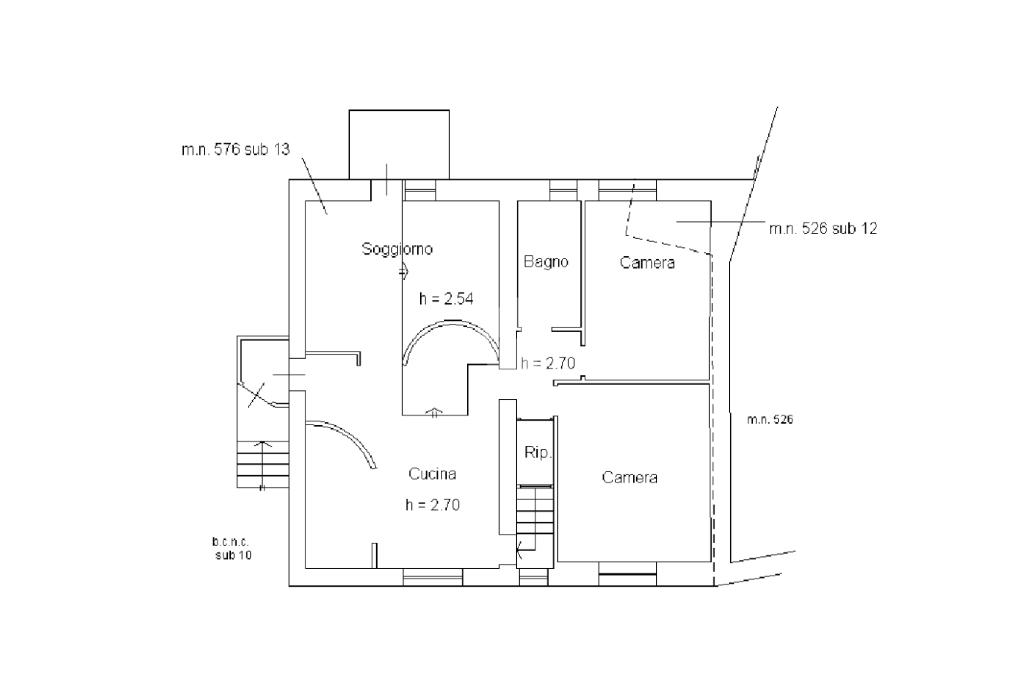
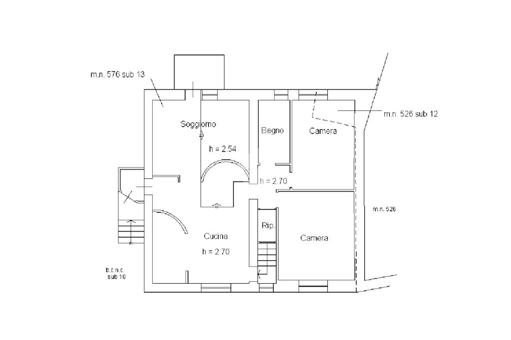
Nel cuore della tranquilla località di Stallavena, nel comune di Grezzana, si propone in vendita un ampio appartamento di 155 mq.

Situato al piano rialzato di un edificio ristrutturato esternamente nel 1960, l'immobile offre spazi ben distribuiti e funzionali. L'immobile si presta a diverse soluzioni abitative, ideale per chi cerca un ambiente accogliente e versatile.

L'appartamento ristrutturato internamente nel 1980 si compone di due ampie camere da letto, un bagno e il soggiorno e la cucina separati. La posizione strategica consente di godere della quiete della zona, pur rimanendo a breve distanza dai principali servizi e collegamenti.

Un'opportunità interessante per chi desidera vivere in un contesto sereno, senza rinunciare alla comodità di spazi generosi.

Mostra tutto

Nelle vicinanze

Trasporto pubblico Trasporto pubblico
Trasporto pubblico
340 m
Farmacia Farmacia
Farmacia Dell'Assunta
3,0 Km
Supermercati Supermercati
Migross
620 m
Negozi Negozi
Carrera
910 m
Bar Bar
Baita Alpini Alcenago
500 m
The Brothers
2,6 Km
Bar
3,0 Km
Ristoranti Ristoranti
Ostaria Trattoria Castel
600 m
ITaste
1,9 Km
Trattoria Righetti
2,8 Km
Mostra tutto

Caratteristiche

Rif.:
61119046
Piano:
Rialzato di 2
Totale piani:
2
Balconi:
1
Camere da letto:
2
Arredamento:
Assente
Mostra tutto
Prezzo Prezzo
€ 115.000
Rata mutuo Rata mutuo
€ 532 / mese
Spese annue Spese annue
€ 0
Proponi il tuo prezzoProponi il tuo prezzo

Classe Energetica

G
G
G
G
G
G
G
G
G
EP invernale del fabbricato:
EP estiva del fabbricato:
Riscaldamento:
Autonomo
Tipo impianto:
A radiatori
Tipo alimentazione:
GPL

Ti interessa visionare l'immobile?

Fissa un appuntamento  Fissa un appuntamento

Richiedi informazioni

* Questi campi sono obbligatori

Calcola il tuo mutuo

Semplice e senza impegno
Anticipo

( % )
Mutuo

( % )

pochi semplici passi

inserisci i tuoi dati
Questionario completato
Grazie per aver richiesto un appuntamento senza impegno con un nostro Consulente del Credito e Assicurativo.

Hai inserito correttamente tutti i dati necessari e a breve riceverai una e-mail con un link da convalidare per inviare i tuoi dati.
Affiliato
Studio Grezzana Nuova Snc
Via Roma, 84 37023 Grezzana (VR)

Il nostro staff


  • Brian Prati
    Affiliato

  • Martina Bonomi
    Collaboratrice

  • Giovanni Lucchi
    Affiliato

  • Luca Nicolis
    Collaboratore

  • Diego Piccoli
    Responsabile

  • Jessica Pezzo
    Collaboratrice
Via Roma, 84 37023 Grezzana (VR)
Zona: Grezzana-Quinto-Marzana-Valpantena
Mostra su mappa
Orari: Dal Lunedì al Venerdì 09:00 - 12:30 15:00 - 19:30 Sabato 09:00 - 13:00
Affiliato
Studio Grezzana Nuova Snc
Via Roma, 84 37023 Grezzana (VR)

2025 Tecnocasa Franchising S.p.A. - P. IVA 08365160152 - Via Monte Bianco 60/A 20089 Rozzano (MI). Ogni agenzia ha un proprio titolare ed è autonoma. Privacy policy | Policy utilizzo | Cookie policy